Свободная планировка
Жилая площадь - 29,4 м²
Площадь кухни - 11,4 м²
Лоджия - 1,9 м²
Санузел - 2,9 м², 1,4 м²
Потолки - 2,8 м

Двухкомнатная квартира 52,6 м.²

Дизайнерские решения представлены на сайте исключительно в ознакомительных целях.
У нас вы можете приобрести квартиру без отделки.

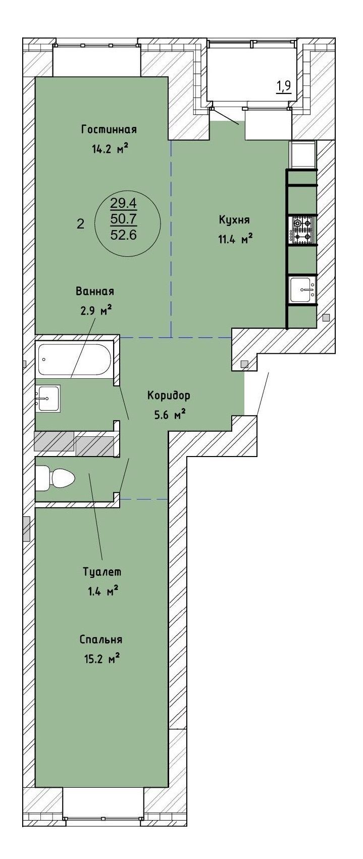
Двухкомнатная квартира 52,6 м².
Свободная планировка
Жилая площадь - 29,4 м²
Площадь кухни - 11,4 м²
Лоджия - 1,9 м²
Санузел - 2,9 м², 1,4 м²
Потолки - 2,8 м
Дизайнерские решения представлены на сайте исключительно в ознакомительных целях.
У нас вы
можете приобрести квартиру без отделки.