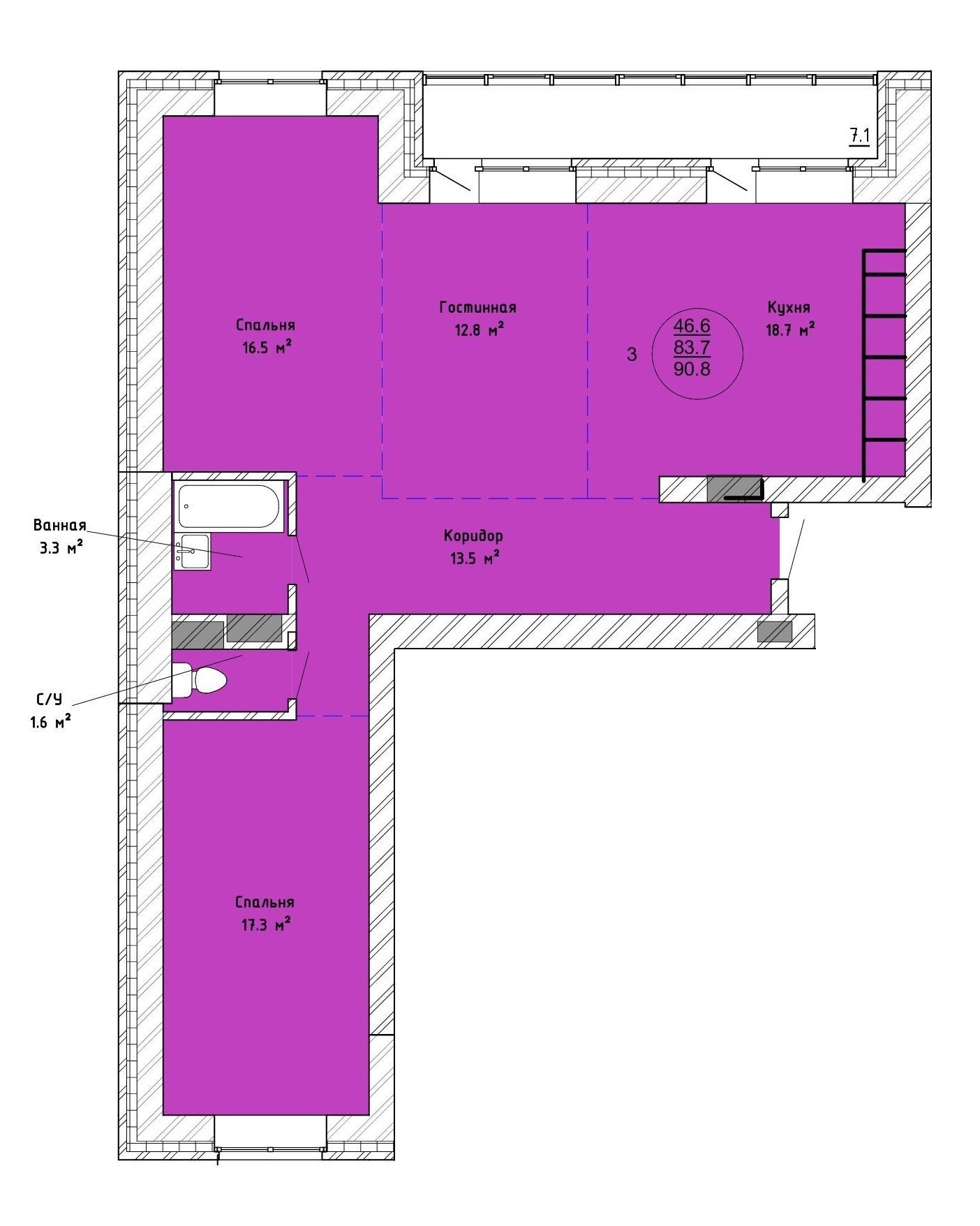
Свободная планировка
Жилая площадь - 46,6 м²
Площадь кухни - 18,7 м²
Лоджия - 7,1 м²
Санузел - 3,3 м², 1,6 м²
Потолки - 2,8 м

Трехкомнатная квартира 90,8 м²

Дизайнерские решения представлены на сайте исключительно в ознакомительных целях.
У нас вы можете приобрести квартиру без отделки.

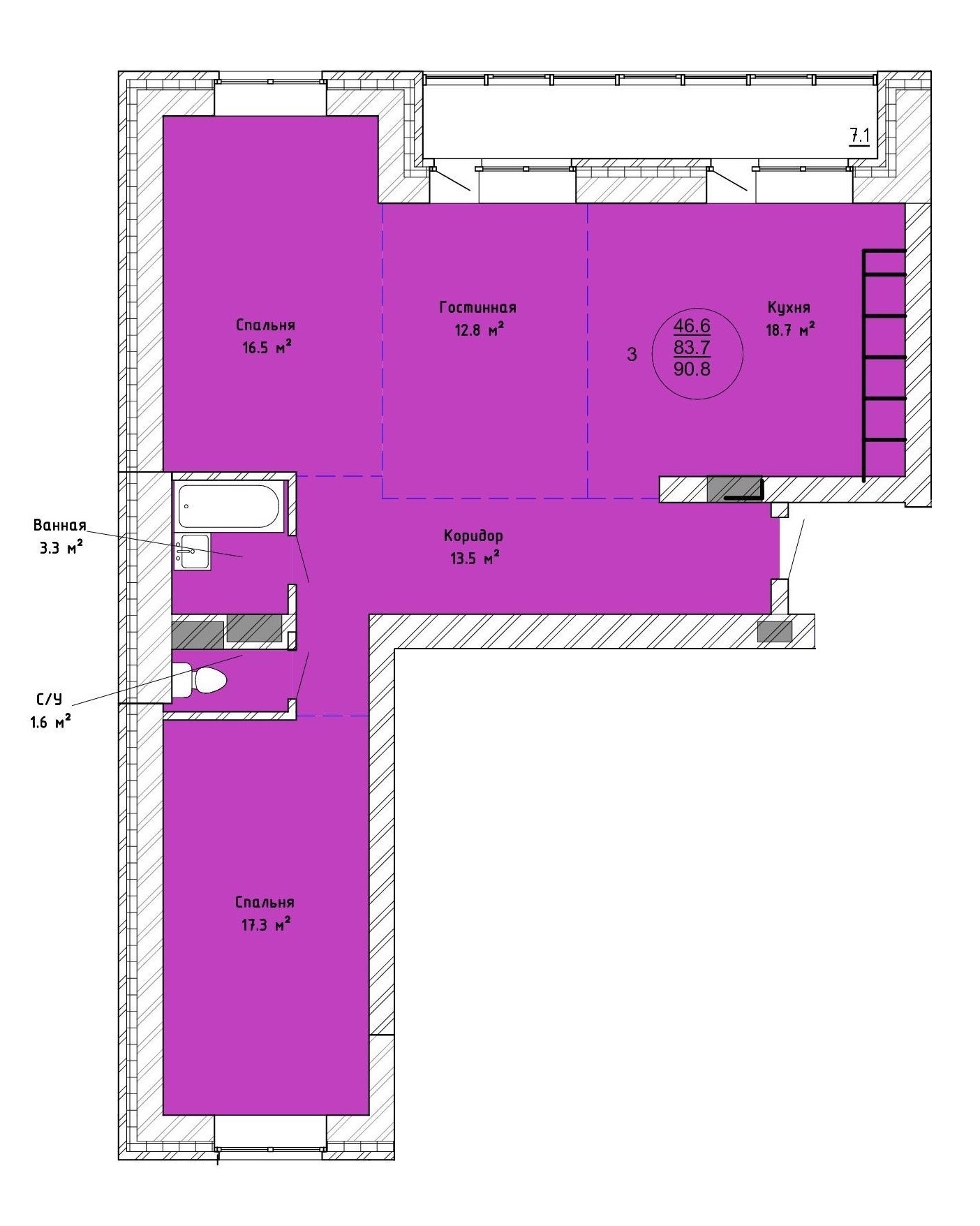
Трехкомнатная квартира 90,8 м²

Свободная планировка
Жилая площадь - 46,6 м²
Площадь кухни - 18,7 м²
Лоджия - 7,1 м²
Санузел - 3,3 м², 1,6 м²
Потолки - 2,8 м
Дизайнерские решения представлены на сайте исключительно в ознакомительных целях.
У нас вы
можете приобрести квартиру без отделки.